9 Dwelling building and commercial store in Sant Cugat del Vallès
Project developed in Ramon Sagales office in Sant Cugat del Vallès, 2005
Site
Current status old house
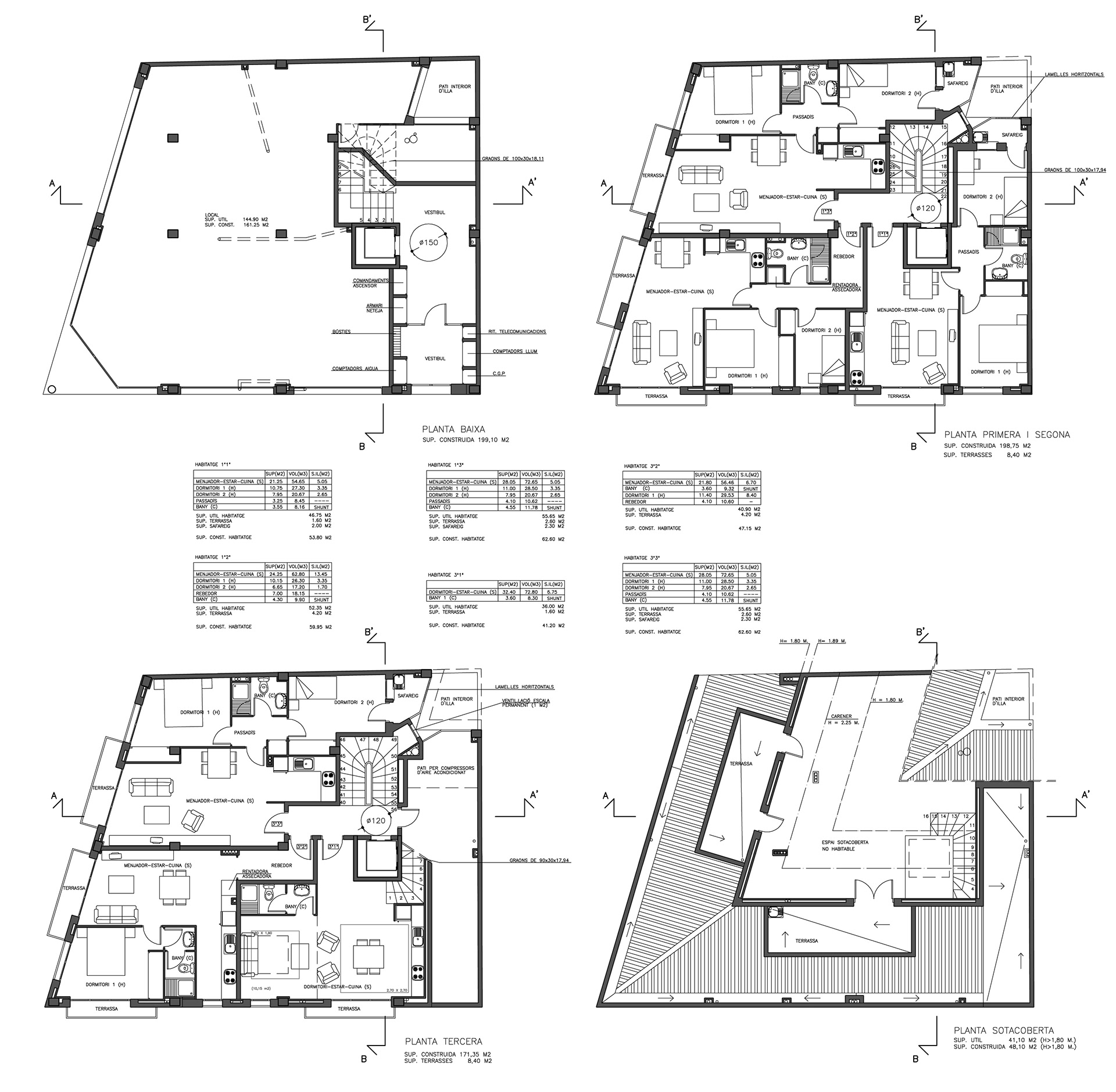
New building floor plans
New building façade plans
New building section plans
↑
INICIO