PROYECTOS
CONTACTO
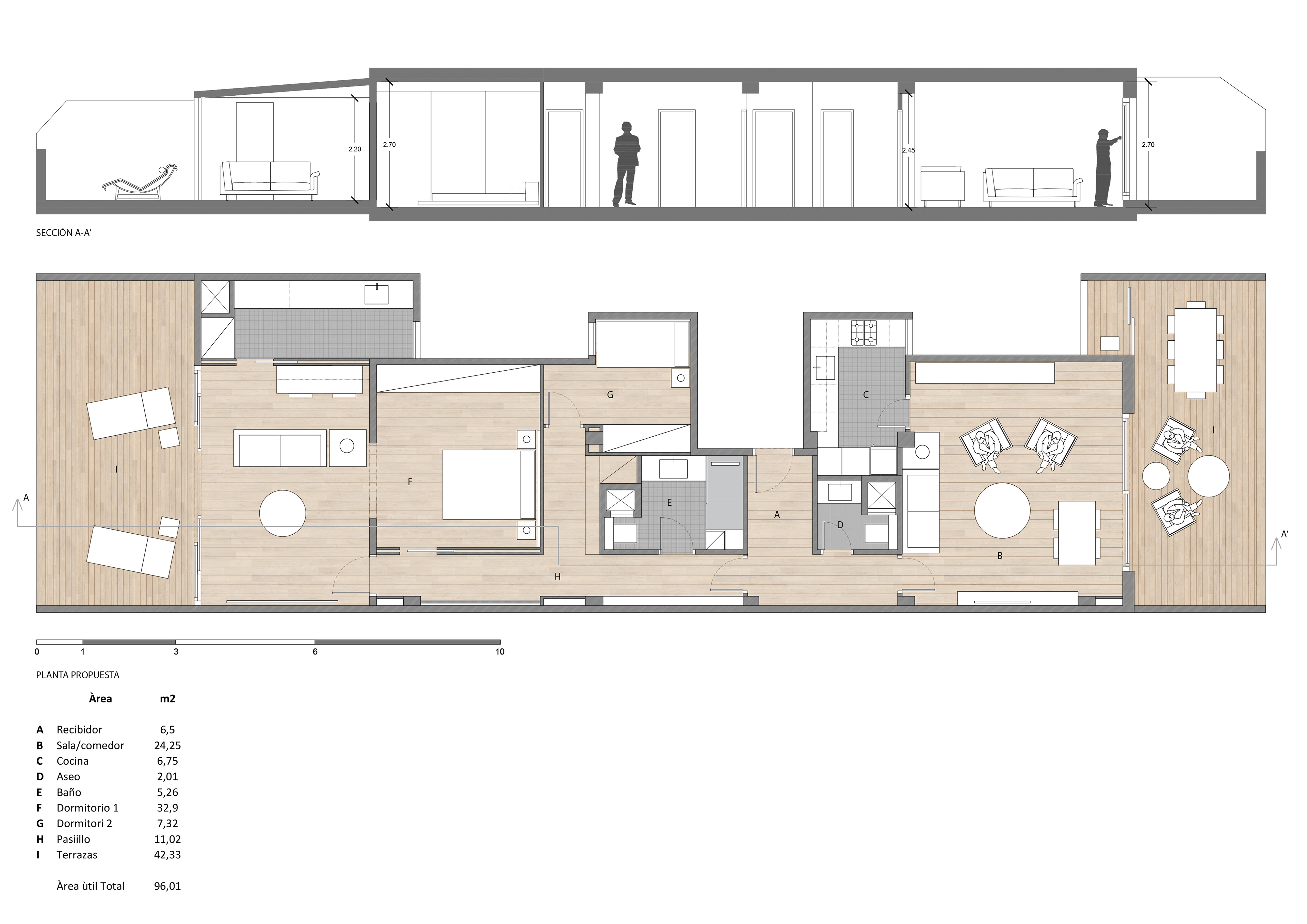
Reforma integral de ático con dos terrazas en calle Córcega, Barcelona. Superfície construida: 120 m2
↑
INICIO