PROYECTOS
CONTACTO
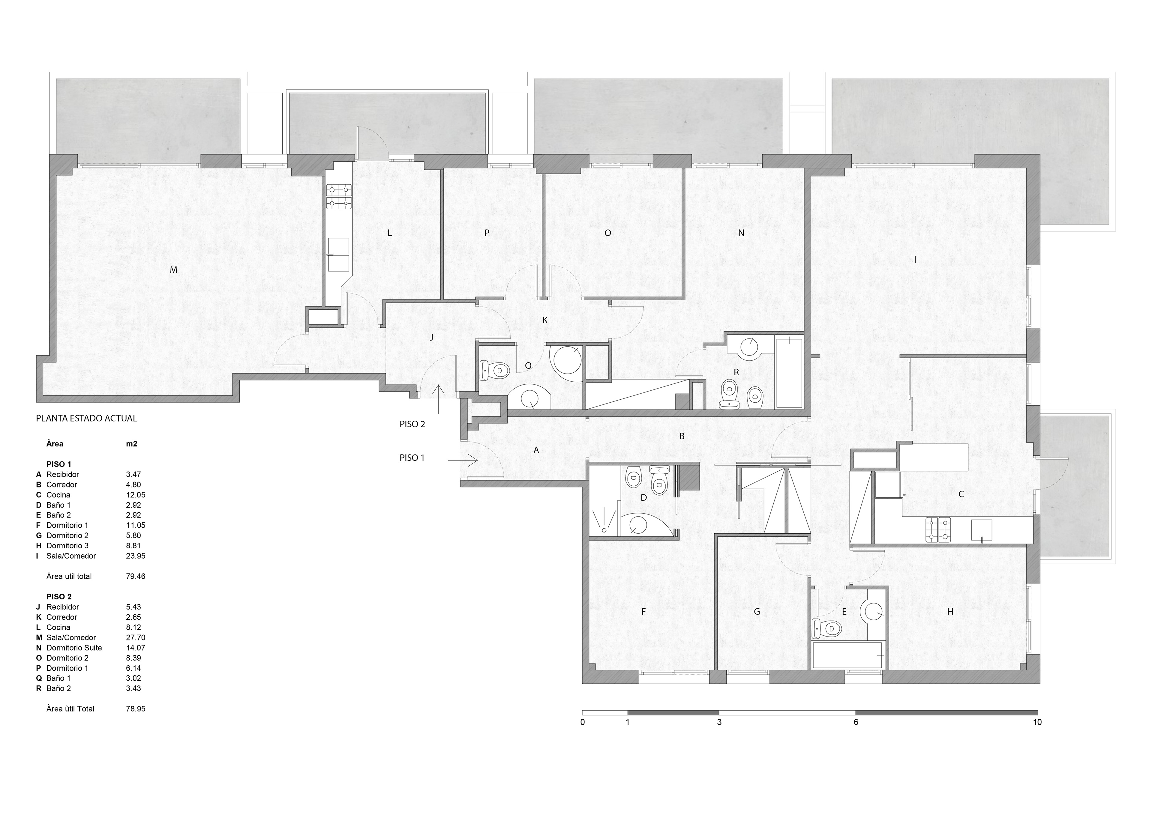
Reforma integral de piso en calle Pintor Tapiró, Barcelona. Superfície construida: 180 m2
↑
INICIO