Kindergarden "Las Tortugas" in Sant Cugat del Vallès
Project developed in Ramon Sagales office in Sant Cugat del Vallès, 2007
Site
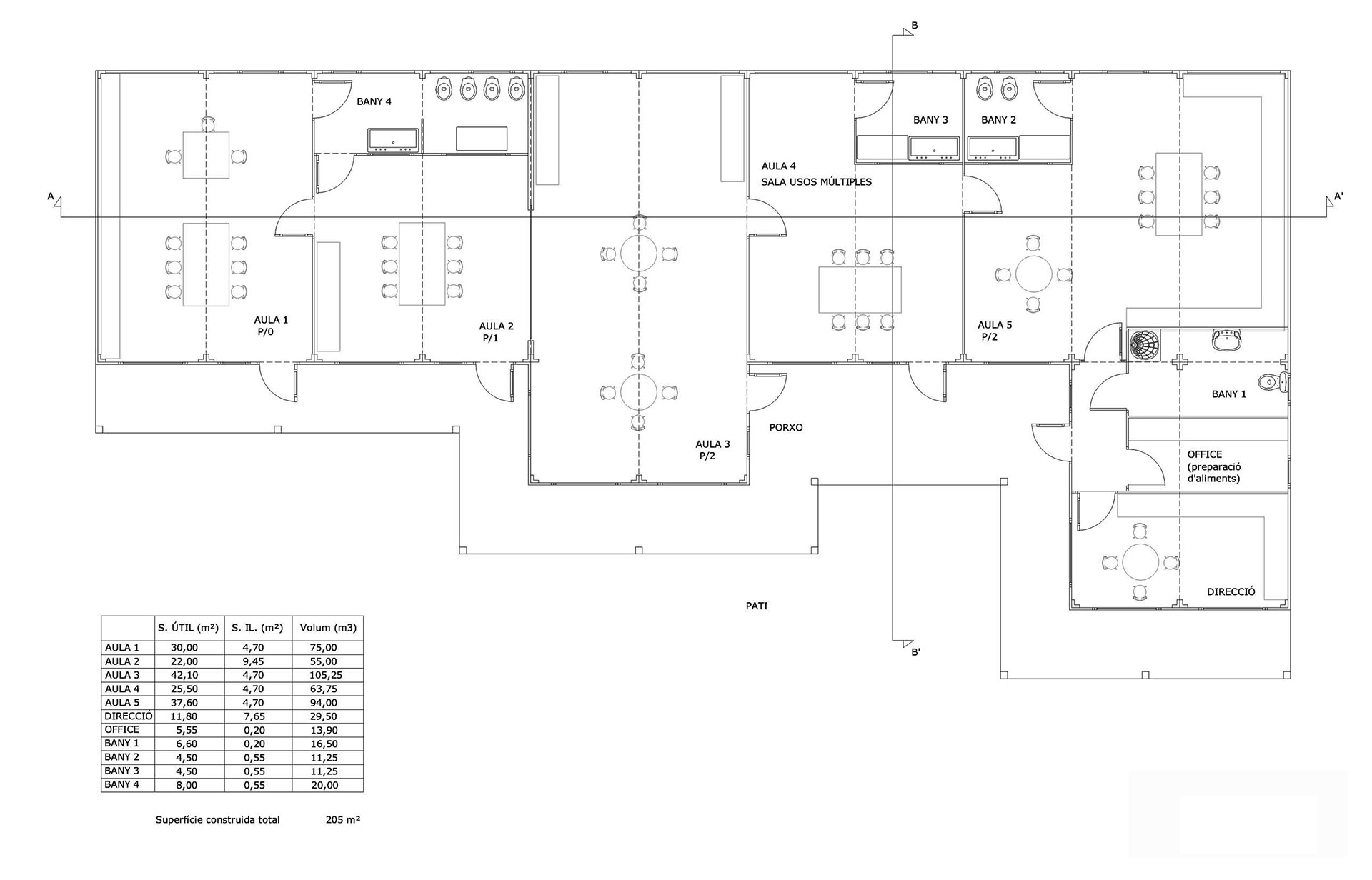
Floor plan
Façade and section plans
Facilities floor plan
Detail plans
↑
INICIO