PROYECTOS
CONTACTO
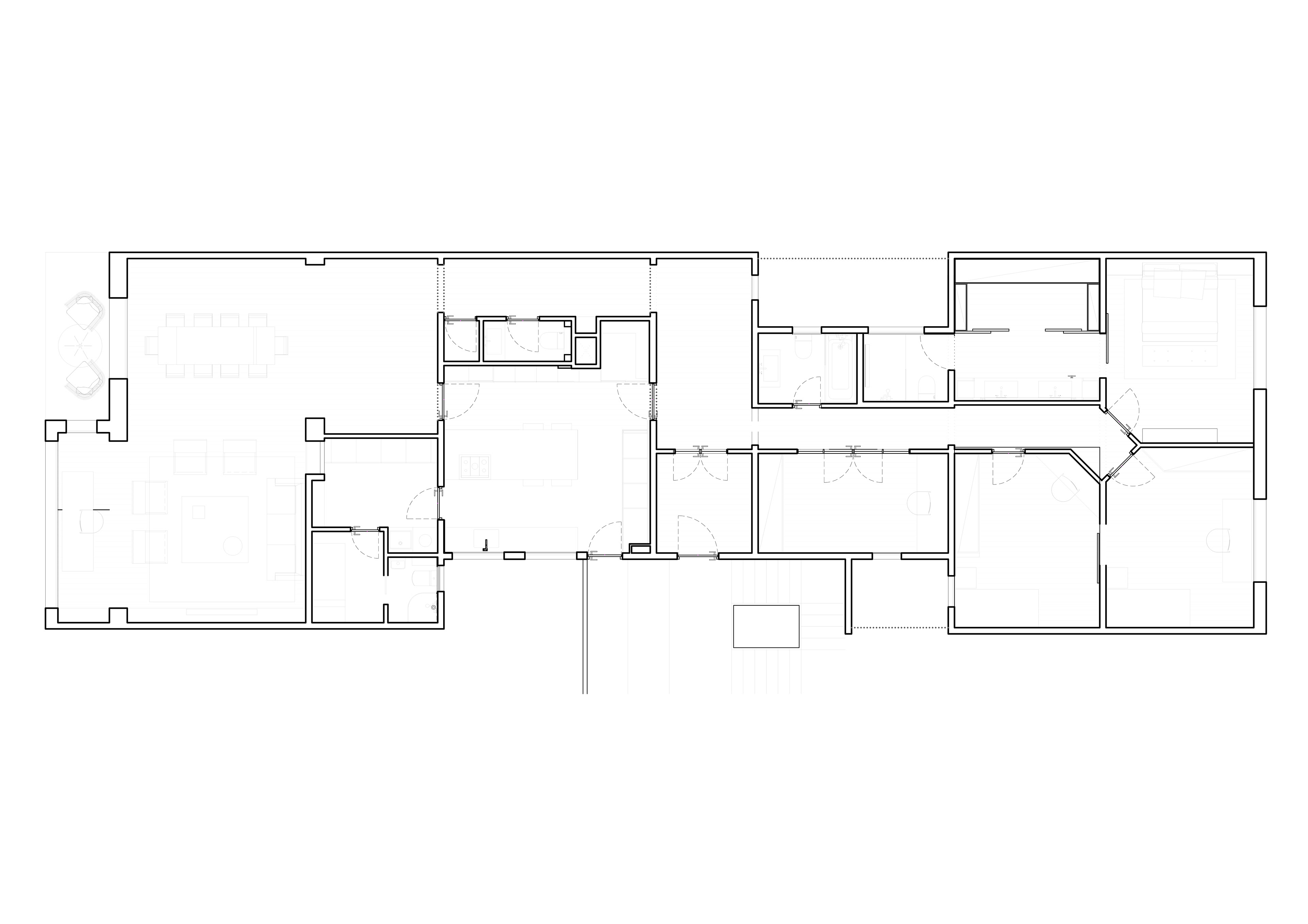
Reforma integral de piso en calle Muntaner, Barcelona. Superfície construida: 220 m2
Sala de estar / comedor
Pasillo, distribuidor
Cocina
Baño y vestidor principal
Baño infantil
Planos proyecto
↑
INICIO