PROYECTOS
CONTACTO
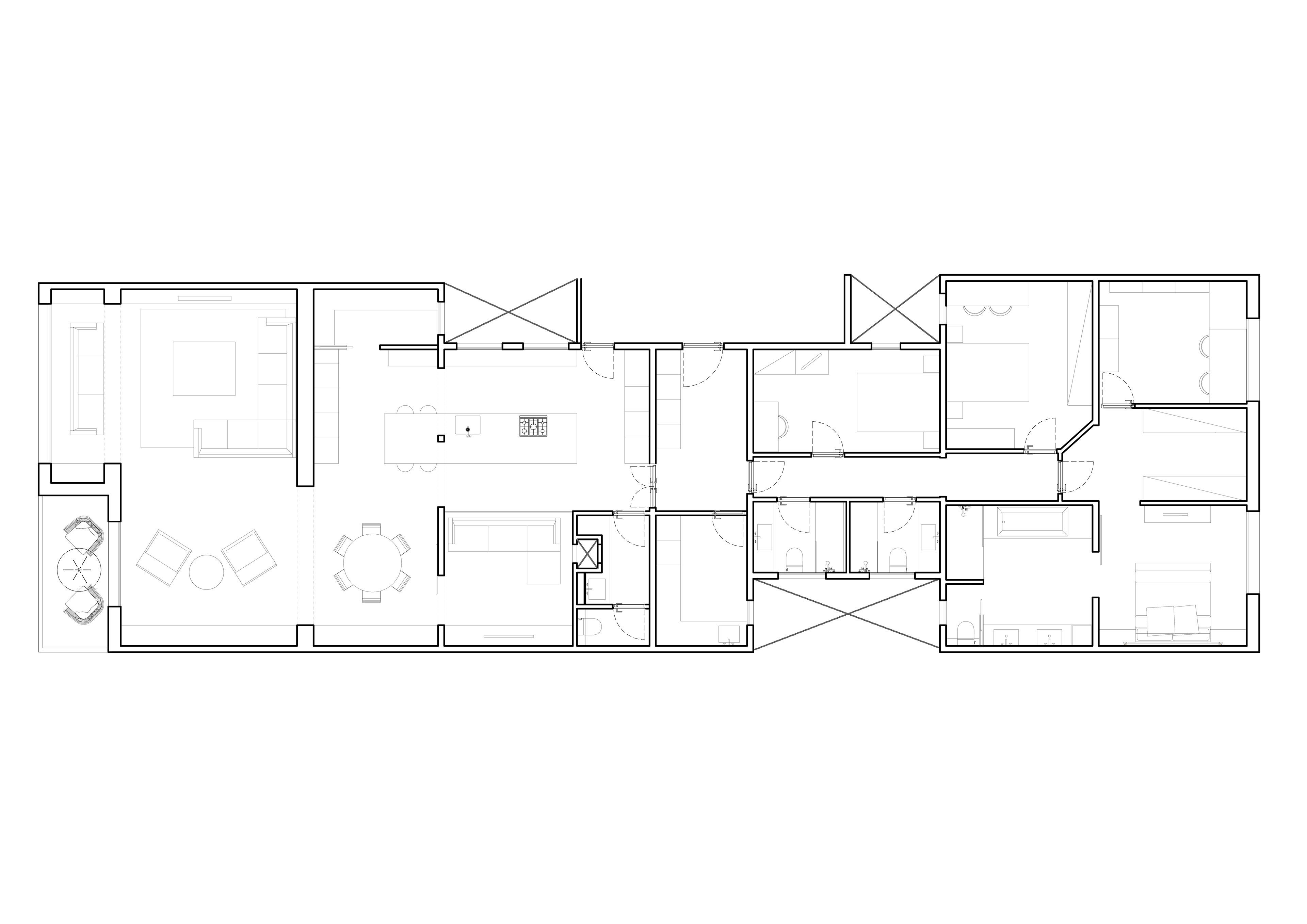
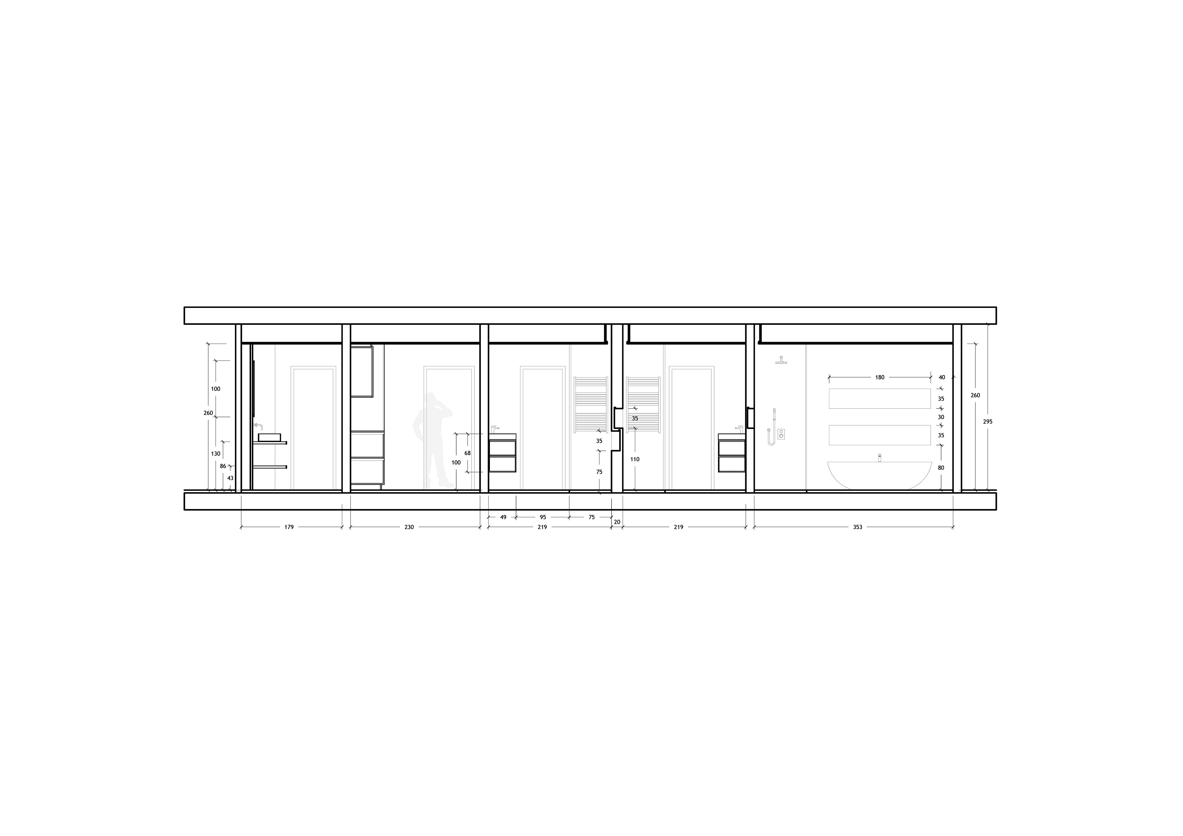
Reforma integral de piso en calle Muntaner, Barcelona. Superfície construida: 220 m2
↑
INICIO