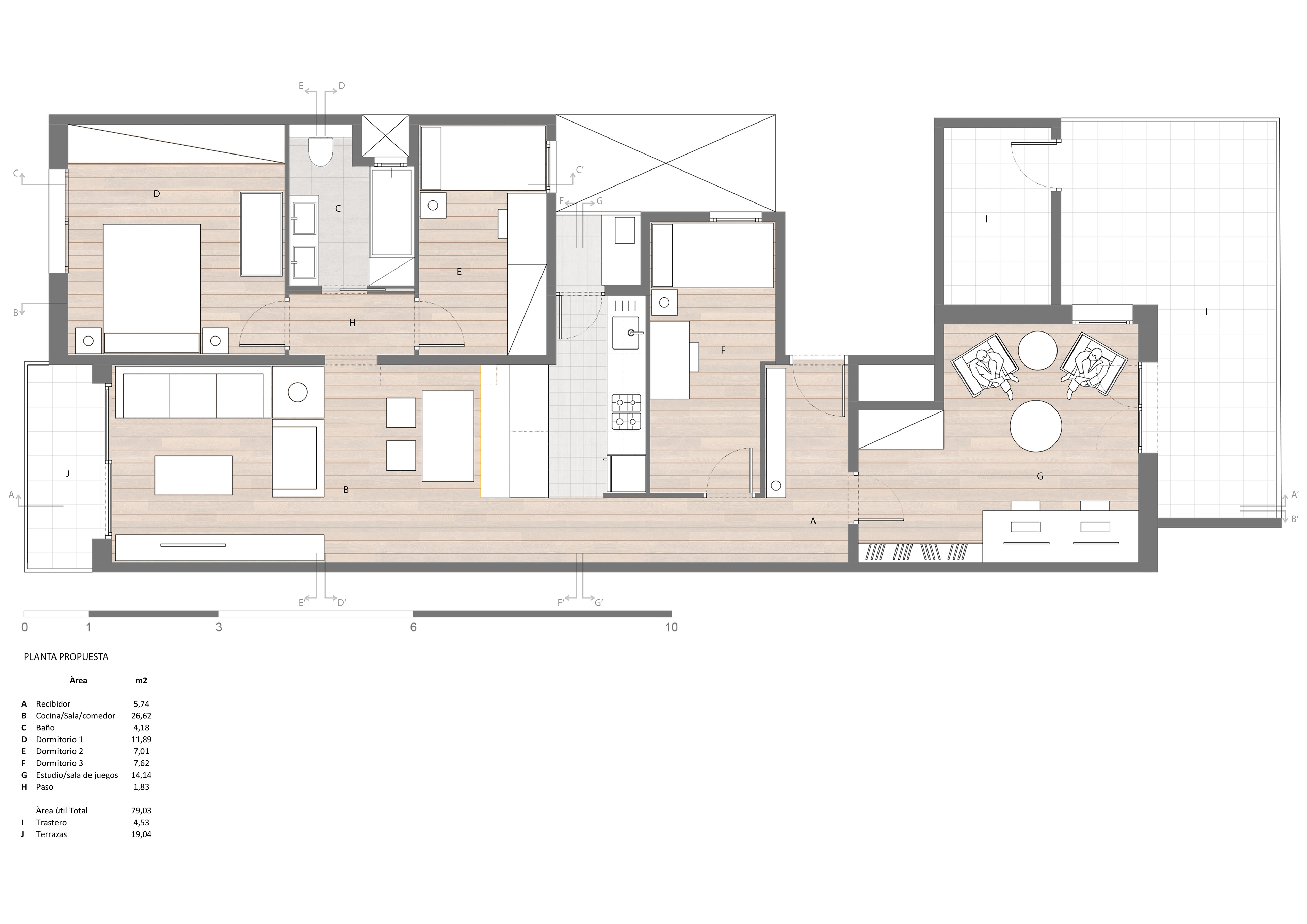
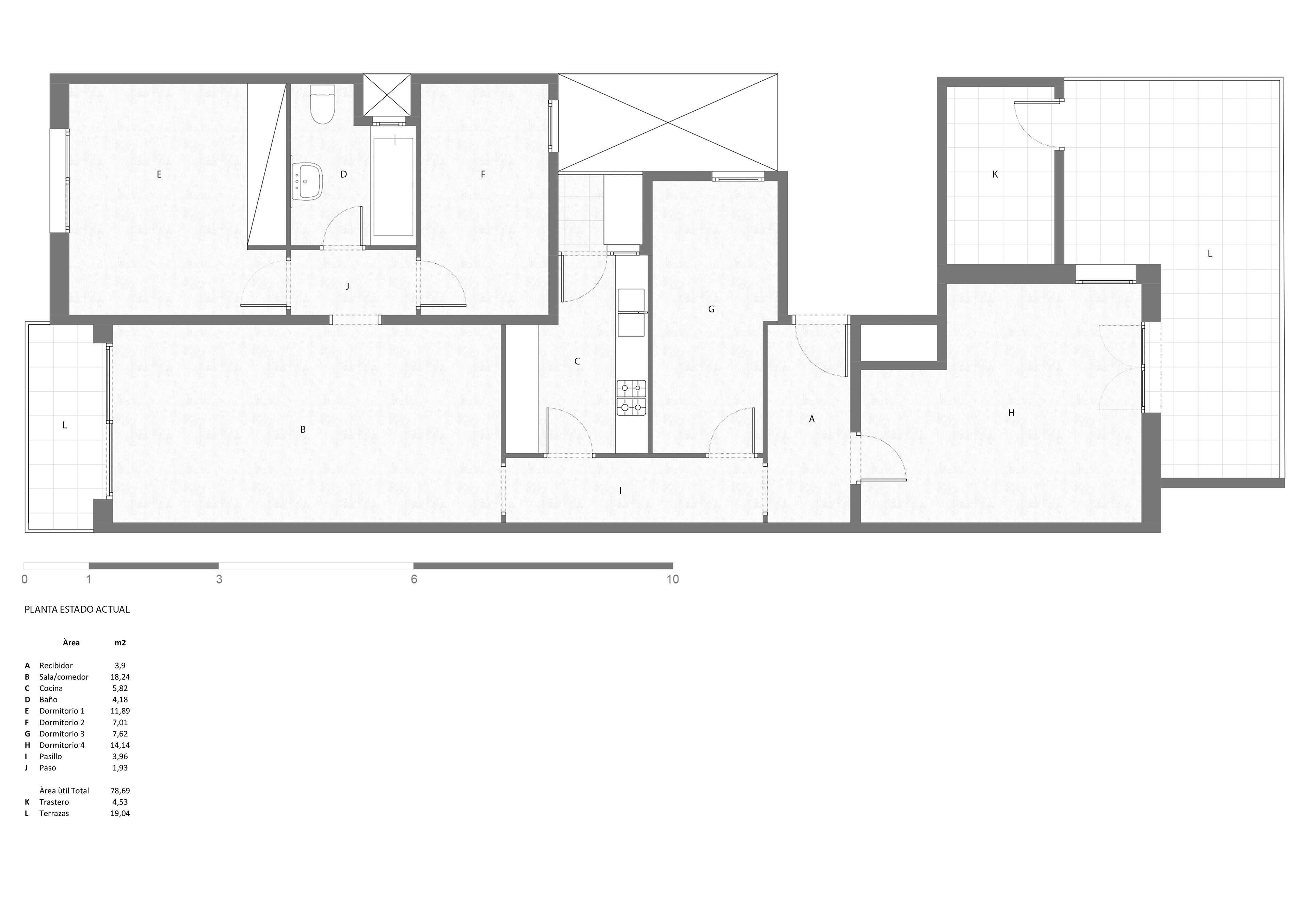
Reforma integral de piso en calle Sant Bonaventura, Sant Cugat del Vallès / Complete interior reform in Sant Bonaventura street, Sant Cugat del Valles.
↑
INICIO