PROYECTOS
CONTACTO
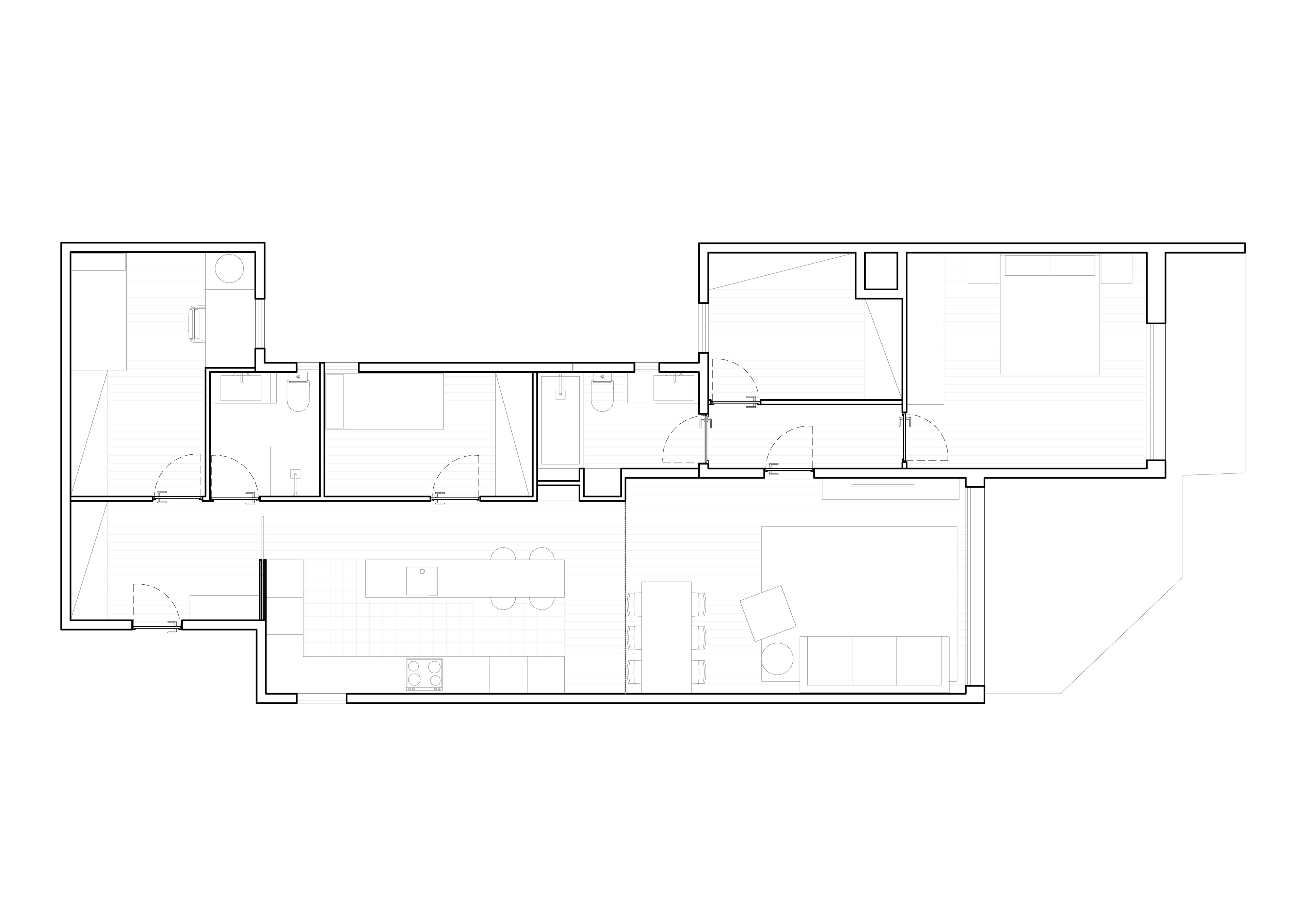
Reforma integral de piso en calle Trinquet, Barcelona. Superfície construida: 100 m2
Sala de estar / comedor
Dormitorio
Cocina
Baño
↑
INICIO